AXIHOME France Immobilier Agence
Télécharger la fiche
Nouveauté

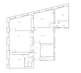
Appartement 6 pièce(s) 4 chambre(s) 113.18 m²

Paris (75016)
1 290 000 € Référence MT386

A propos de ce bien

L'agence AXIHOME France vous propose : Dans un immeuble haussmanien, appartement de 6 pièces principales de 113 m², à rénover. Idéalement positionné au 1er étage avec ascenseur, le bien comprend une entrée, un grand salon, une salle à manger et 4 belles chambres. Une cave accompagne l'ensemble. Eléments anciens conservés : parquet, moulures, cheminées. Belles possibilités de rénovation. Vue sur l'Arc de Triomphe. Pas de travaux prévu sur l'immeuble. Taxe foncière : 2 555 € / an. Charges de copropriété : 375 € / mois. Prix du bien : 1 290 000 € HAI (Honoraire d'agence à la charge du vendeur et inclus dans le prix de vente).

Caractéristiques de ce bien

  • Surface 113,18 m²
  • carrez 110,27 m²
  • 4 chambre(s)
  • 2 salle(s) d'eau
  • cuisine séparée (équipée)
  • Chauffage individuel : chaudière (gaz)
  • exposition Nord-Est
  • 1er étage
  • ascenseur
  • vue Arc de Triomphe
  • cave

Diagnostics énergétiques

DPE
GES

Montant estimé des dépenses annuelles d'énergie pour un usage standard est compris entre 2 830 € et 3 860 € . Prix moyens des énergies indexés sur les années 2021, 2022 et 2023 (abonnements compris).

Informations financières

Prix de vente 1 290 000 € Les honoraires d'agence seront intégralement à la charge du vendeur

Informations de copropriété

Copropriété Oui
Lot n° 4, 41, 51, 24
Nombre de lots 8
Quote part annuelle des charges 4 500 €
Plan de sauvegarde Non
Statut du syndic Pas de procédure en cours

Calcul des mensualités

* Champs obligatoires