Calculette
Partager
Appartement de 3 pièces rue St Dominique Paris 7
Description de l'offre
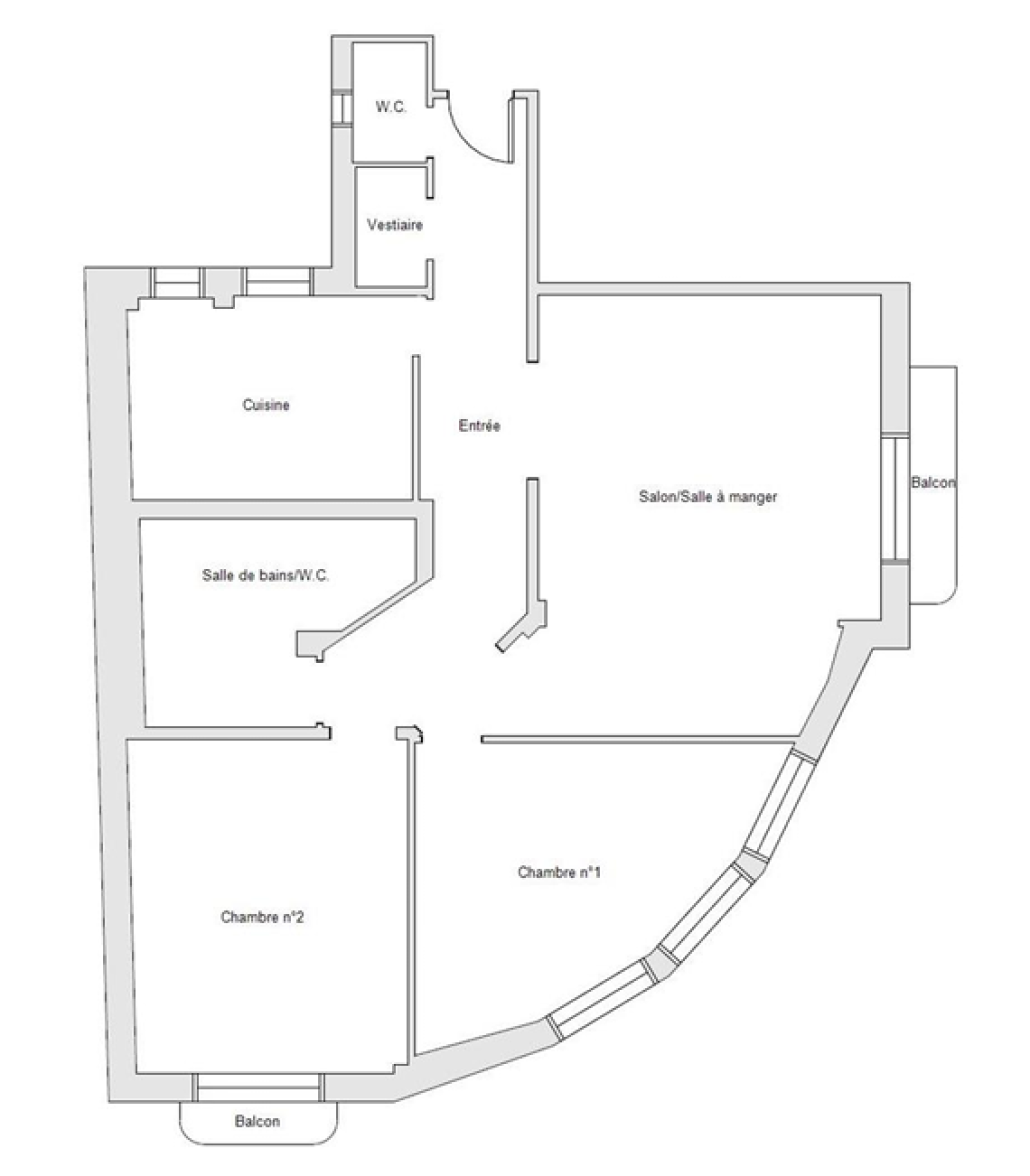
L'agence AXIHOME France vous propose : Idéalement placé à coté de l'Eglise St Pierre du Gros Cailloux et de la fameuse rue Cler, appartement de 79 m² de 3 pièces agrémenté de 2 balconnets. Situé au 3ème étage d'un immeuble en bon état des années 40, l'appartement est orienté sud / ouest et ne nécessite pas de travaux. Pas de vis à vis direct. Vue sur la rue St dominique et l'église St Pierre. Le bien est vendu avec une cave. Une occupation par bail est effective jusqu'au 30 juin 2026. Taxe Foncière annuelle : 1 723 euros. Prix du bien : 1 395 000 € FAI (Frais d'agence inclus et à la charge du vendeur).
Descriptif du bien
- Code postal : 75007
- Surface habitable (m²) : 77,91 m²
- Surface loi Carrez (m²) : 77,91 m²
- Nombre de chambre(s) : 2
- Nombre de pièces : 3
- Etage : 3
- Ascenseur : OUI
- Vue : Dégagée et sans vis à vis
- Nb de salle de bains : 1
- Cuisine : AMERICAINE
- Type de cuisine : EQUIPEE
- Mode de chauffage : Gaz
- Type de chauffage : TRAD_TYPE_CHAUFF_CHAUDIERE
- Format de chauffage : Collectif
- Interphone : OUI
- Balcon : OUI
- Cave : OUI
- Exposition : SUD
- Année de construction : 1941
- Copropriété : OUI
- Lot n° : 39, 6
- nombre de lots : 2
- plan de sauvegarde : NON
- statut du syndic : pas de procédure en cours
- Prix de vente : 1 395 000 €
- Les honoraires d'agence seront intégralement à la charge du vendeur
La ville de Paris (75007)
Ce bien vous intéresse ?
Partager l'offre
Nous Contacter
Afficher le téléphone 06 62 81 28 58Les informations recueillies sur ce formulaire sont enregistrées dans un fichier informatisé par La Boite Immo agissant comme Sous-traitant du traitement pour la gestion de la clientèle/prospects de l'Agence / du Réseau qui reste Responsable du Traitement de vos Données personnelles.
La base légale du traitement repose sur l’intérêt légitime de l'Agence / du Réseau.
Elles sont conservées jusqu'à demande de suppression et sont destinées à l'Agence / au Réseau.
Conformément à la loi « informatique et libertés », vous pouvez exercer votre droit d'accès aux données vous concernant et les faire rectifier en contactant l'Agence / le Réseau.
Si vous estimez, après avoir contacté l'Agence / le Réseau, que vos droits « Informatique et Libertés » ne sont pas respectés, vous pouvez adresser une réclamation à la CNIL.
Nous vous informons de l’existence de la liste d'opposition au démarchage téléphonique « Bloctel », sur laquelle vous pouvez vous inscrire ici : https://www.bloctel.gouv.fr
Dans le cadre de la protection des Données personnelles, nous vous invitons à ne pas inscrire de Données sensibles dans le champ de saisie libre
Ce site est protégé par reCAPTCHA, les Politiques de Confidentialité et les Conditions d'Utilisation de Google s'appliquent.
