Calculette
Partager
Appartement de 3 pièces - Bd Exelmans à Paris 16
Description de l'offre
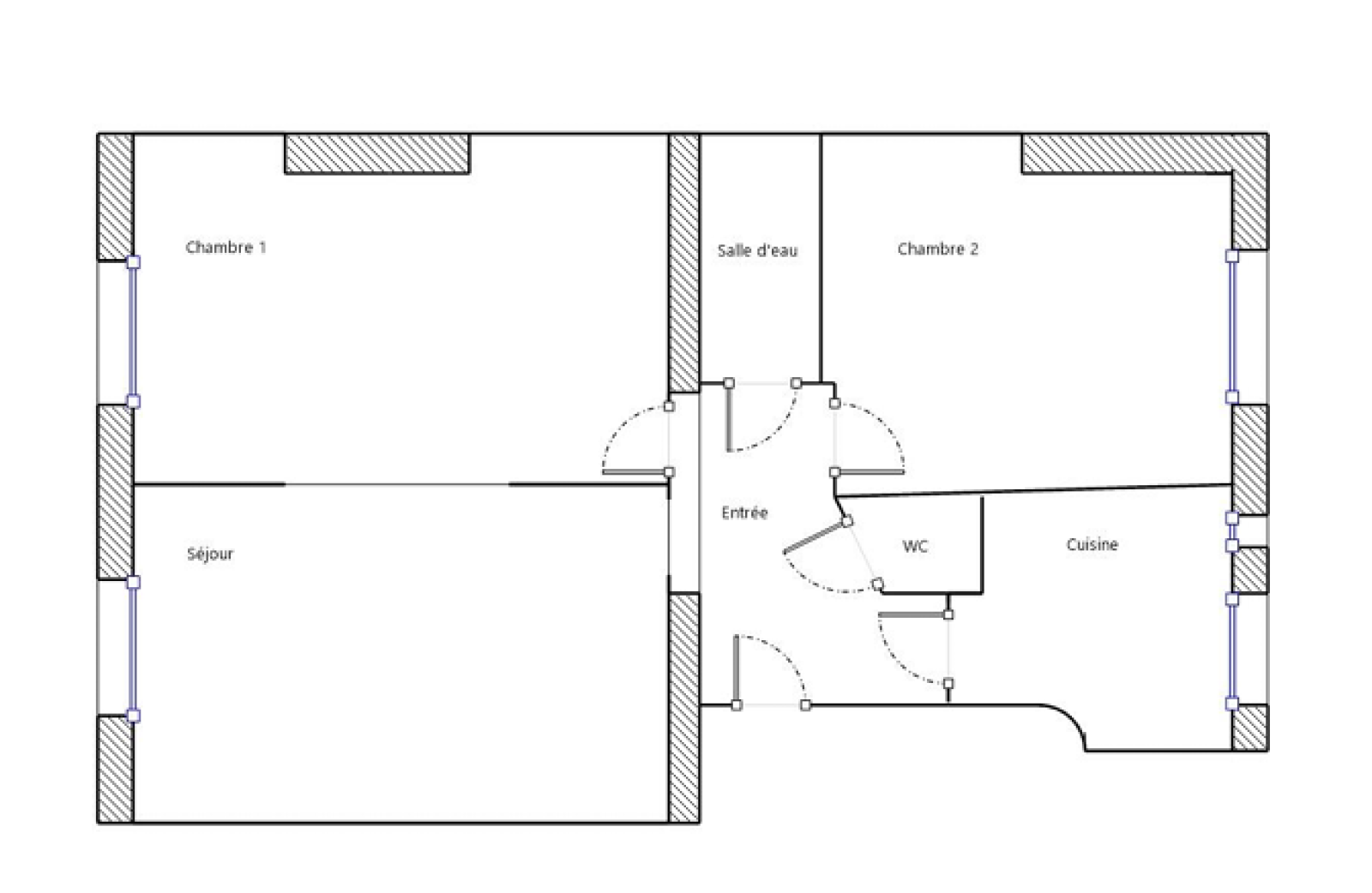
L'agence AXIHOME France vous propose : dans un immeuble en pierre de taille idéalement placé, appartement de 3 pièces principales en bon état général et comprenant une entrée, un salon, 2 chambres, une cuisine, une salle d'eau et un wc séparé. Une cave complète l'ensemble. Appartement clair, calme et situé au 3ème étage d'un immeuble sur cour avec ascenseur. Copropriété bien entretenue. Idéal pour une première acquisiion ou un investiessement locatif. Charges mensuelles : 120 euros. Prix du bien : 545 000 € HAI (frais d'agence inclus à la charge du vendeur).
Descriptif du bien
- Code postal : 75016
- Surface habitable (m²) : 49,42 m²
- Surface loi Carrez (m²) : 49,42 m²
- Nombre de chambre(s) : 2
- Nombre de pièces : 3
- Etage : 3
- Ascenseur : OUI
- Vue : Dégagée
- Nb de salle d'eau : 1
- Cuisine : SEPAREE
- Balcon : NON
- Terrasse : NON
- Cave : OUI
- Exposition : SUD-OUEST
- Copropriété : OUI
- nombre de lots : 2
- Quote Part annuelle des charges : 1 440 €
- plan de sauvegarde : NON
- statut du syndic : pas de procédure en cours
- Prix de vente : 545 000 €
- Les honoraires d'agence seront intégralement à la charge du vendeur
Montant estimé des dépenses annuelles d'énergie de ce logement pour un usage standard est compris entre 800 € et 1 140 € . 2021 étant l'année de référence des prix de l'énergie utilisés pour établir cette estimation.
La ville de Paris (75016)
Ce bien vous intéresse ?
Partager l'offre
Nous Contacter
Afficher le téléphone 06 62 81 28 58Les informations recueillies sur ce formulaire sont enregistrées dans un fichier informatisé par La Boite Immo agissant comme Sous-traitant du traitement pour la gestion de la clientèle/prospects de l'Agence / du Réseau qui reste Responsable du Traitement de vos Données personnelles.
La base légale du traitement repose sur l’intérêt légitime de l'Agence / du Réseau.
Elles sont conservées jusqu'à demande de suppression et sont destinées à l'Agence / au Réseau.
Conformément à la loi « informatique et libertés », vous pouvez exercer votre droit d'accès aux données vous concernant et les faire rectifier en contactant l'Agence / le Réseau.
Si vous estimez, après avoir contacté l'Agence / le Réseau, que vos droits « Informatique et Libertés » ne sont pas respectés, vous pouvez adresser une réclamation à la CNIL.
Nous vous informons de l’existence de la liste d'opposition au démarchage téléphonique « Bloctel », sur laquelle vous pouvez vous inscrire ici : https://www.bloctel.gouv.fr
Dans le cadre de la protection des Données personnelles, nous vous invitons à ne pas inscrire de Données sensibles dans le champ de saisie libre
Ce site est protégé par reCAPTCHA, les Politiques de Confidentialité et les Conditions d'Utilisation de Google s'appliquent.
